Accedi al sito
Serve aiuto?
  • Tel: 335 683 2280
  • info@studiocanzian.eu

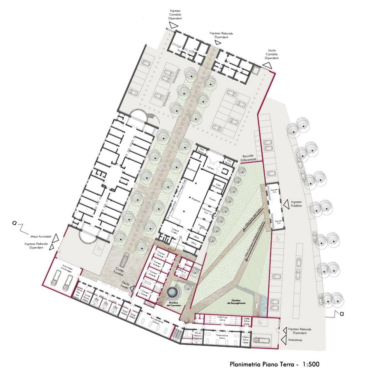
Cittadella del Commiato

Cittadella del commiato - Ferrara
 
Capogruppo: Massimo Canzian
Collaboratori: Laura Galdenzi, Luca Berluti
Tipologia: Concorso di progettazione  -  Edilizia speciale
Ubicazione: Ferrara
Progetto: 2012
   
  “Se in un bosco troviamo un tumulo, lungo sei piedi e largo tre, disposto con la pala a forma di piramide, ci facciamo seri e qualcosa dice dentro di noi: qui e sepolto qualcuno.
Questa è architettura”
 
Adolf Loos